60 Hickory Place

  • $374,900
Featured For sale Open on Google Maps
60 Hickory Place, Conception Bay South, NL A1W4Z3, CA
Featured For sale Open on Google Maps
60 Hickory Place, Conception Bay South, NL A1W4Z3, CA
  • $374,900

Overview

MLS® NUMBER: 1295131
  • Single Family
  • Property Type
  • 4
  • Bedrooms
  • 4
  • Bathrooms
  • 1989
  • Sq Ft
  • 2025
  • Year Built

Listed by: RE/MAX Realty Specialists

Description

Welcome to this well-maintained 2-storey duplex situated in the picturesque community of Conception Bay South. Offering a spacious layout across three levels, this home delivers comfort, functionality, and room to grow. The main floor features a bright living room, a convenient half bath, and a modern kitchen with direct access to the rear deck—perfect for relaxing or entertaining. Upstairs you’ll find a large primary bedroom complete with its own ensuite and walk-in closet, along with two additional well-sized bedrooms and a full bathroom. The undeveloped lower level presents a blank canvas for your future development of a rec room, bedroom, extra storage, gym etc. Outside, enjoy a paved driveway and a private rear deck overlooking the backyard. This property is a fantastic opportunity for first-time buyers or families looking for a move-in-ready home in a desirable location near schools, amenities, and beautiful coastal scenery. (id:58149)

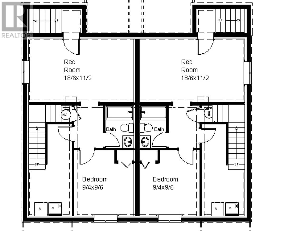
Rooms

Basement
  • Bath (# pieces 1-6)
  • Size: 4 pc
  • Bedroom
  • Size: 9.4 x 9.6
  • Laundry room
  • Size: Measurements not available
  • Recreation room
  • Size: 18.6 x 11.2
Main level
  • Bath (# pieces 1-6)
  • Size: 2 pc
  • Kitchen
  • Size: 19 x 11.8
  • Living room
  • Size: 10.6 x 17
Second level
  • Bath (# pieces 1-6)
  • Size: 4 pc
  • Bedroom
  • Size: 9.4 x 9.6
  • Bedroom
  • Size: 9.4 x 11
  • Ensuite
  • Size: 4 pc
  • Primary Bedroom
  • Size: 12 x 13

Details

Updated on 2026-03-30 16:10:05
  • Year Built:2025
  • Zoning Description:House
  • Lot Size:30 x 100
  • Amenities:Recreation, Shopping

Additional details

  • Building Type:House
  • Floor Space:1989 sqft
  • Architectural Style:2 Level
  • Stories:2
  • Baths:4
  • Half Baths:1
  • Bedrooms:4
  • Rooms:12
  • Flooring Type:Mixed Flooring
  • Foundation Type:Poured Concrete
  • Sewer:Municipal sewage system
  • Heating:Electric
  • Exterior Finish:Vinyl siding
  • Construction Style Attachment:Semi-detached

Mortgage Calculator

Monthly
  • Principal & Interest
  • Property Tax
  • Home Insurance
  • PMI
$
$
%
$
$
$

Similar Listings

Compare listings

Compare
  • Contact Us