58 Trenton Drive

  • $419,000
Featured For sale Open on Google Maps
58 Trenton Drive, Paradise, NL A1L2A6, CA
Featured For sale Open on Google Maps
58 Trenton Drive, Paradise, NL A1L2A6, CA
  • $419,000

Overview

MLS® NUMBER: 1289613
  • Single Family
  • Property Type
  • 3
  • Bedrooms
  • 3
  • Bathrooms
  • 1320
  • Sq Ft
  • 2025
  • Year Built

Listed by: Keller Williams Platinum Realty

Description

Construction is well underway on this gorgeous duplex in Emerald Ridge! Design selections made by Violet Lily Design to make for a seamless build process without having to worry about allowances. Tentative move in October 2025. Step inside to a bright, open-concept main floor, featuring a spacious living room, contemporary kitchen and stunning view of Octagon Pond. Upstairs, you’ll find three bedrooms, including a primary suite with its own ensuite and a walk-in closet. The second full bathroom and upstairs laundry add convenience to your daily routine. Whether you`re a first-time buyer or a growing family this duplex offers comfort, convenience and style! Please note mood boards and renderings shown in the listing photos are for visual purposes only. Final finishes and selections may vary. HST included in list price to be rebated to vendor on closing. (id:9704)

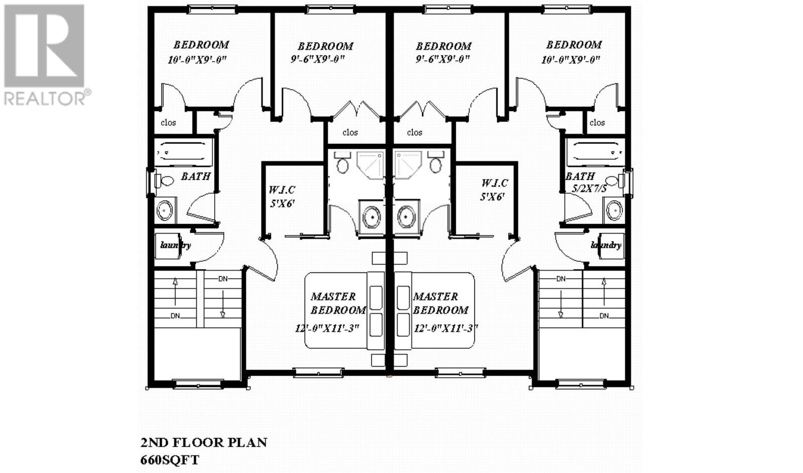
Rooms

Main level
  • Bath (# pieces 1-6)
  • Size: 2pc
  • Dining room
  • Size: 12x7
  • Kitchen
  • Size: 14.4x13.10
  • Living room
  • Size: 12x10
  • Not known
  • Size: 5.2x5.4
Second level
  • Bath (# pieces 1-6)
  • Size: 4pc
  • Bedroom
  • Size: 10x9
  • Bedroom
  • Size: 9.6x9.0
  • Ensuite
  • Size: 3pc
  • Primary Bedroom
  • Size: 12x11.3

Details

Updated on 2025-10-22 16:10:16
  • Year Built:2025
  • Zoning Description:House
  • Lot Size:3305 sq ft
  • Amenities:Recreation, Shopping
  • View:View

Additional details

  • Building Type:House
  • Floor Space:1320 sqft
  • Stories:1
  • Baths:3
  • Half Baths:1
  • Bedrooms:3
  • Rooms:10
  • Flooring Type:Mixed Flooring
  • Foundation Type:Concrete
  • Sewer:Municipal sewage system
  • Heating Type:Baseboard heaters
  • Heating:Electric
  • Exterior Finish:Vinyl siding
  • Construction Style Attachment:Attached

Mortgage Calculator

Monthly
  • Principal & Interest
  • Property Tax
  • Home Insurance
  • PMI
$
$
%
$
$
$

Similar Listings

Compare listings

Compare
  • Contact Us