57 Neptune Road

  • $449,900
Featured For sale Open on Google Maps
57 Neptune Road, St. John`s, NL A1B4J2, CA
Featured For sale Open on Google Maps
57 Neptune Road, St. John`s, NL A1B4J2, CA
  • $449,900

Overview

MLS® NUMBER: 1296620
  • Single Family
  • Property Type
  • 5
  • Bedrooms
  • 3
  • Bathrooms
  • 2128
  • Sq Ft
  • 1990
  • Year Built

Listed by: Goldstone Real Estate Solutions Inc.

Description

Transform your life in this professionally renovated registered two apt home. Welcome to 57 Neptune Road, located on a desirable corner lot at the entrance to a cul de sac. This beautifully completed and practically brand new, two apartment home home offers everything you and your family have been searching for - quality, space, functionality, flexibility, and incredible value. The main unit features a huge and bright living room, eat-in kitchen, new S/S appliances, three generously sized bedrooms. The lower level is fully developed complete with a cozy rec room, office area, as well as a laundry room and half bath. This home has been stripped to the studs and fully rebuilt inside and out, including new insulation, vapour barrier, spray foam, all new drywall, making it feel like a brand new property. Extensive renovations also include a new 30 year architectural shingles, dark colored siding, all new doors, two new kitchens by Custom Cabinets, all new stainless steel appliances, luxury vinyl plank laminate flooring, modern lighting & pot lights, new sleek stair railing, 2-4 car parking and electrical rough-in for mini splits for both units. The beautifully renovated one bedroom basement apartment will attract maximum returns,. It features a bright spacious living room, lots of natural light, and brand new eat-in kitchen, and its own laundry. Making this the perfect for offsetting mortgage costs. Ideally situated within walking distance to Avalon Mall and Health Sciences Centre, Janeway, the Waterford Hospital, MUN with a Metro bus route right across the street. This home offers contemporary construction, comfort, and a very ideal sought after location. The vendor has redeveloped this home with YOU in mind! Just bring your family and call this property YOUR HOME !!! As per the Sellers Direction, there will be no conveyance of offers prior to 5pm on Sunday, May 3, with offers to remain open until 8pm on the same day.Listing Agent is co-owner and a licensed Realtor. (id:58149)

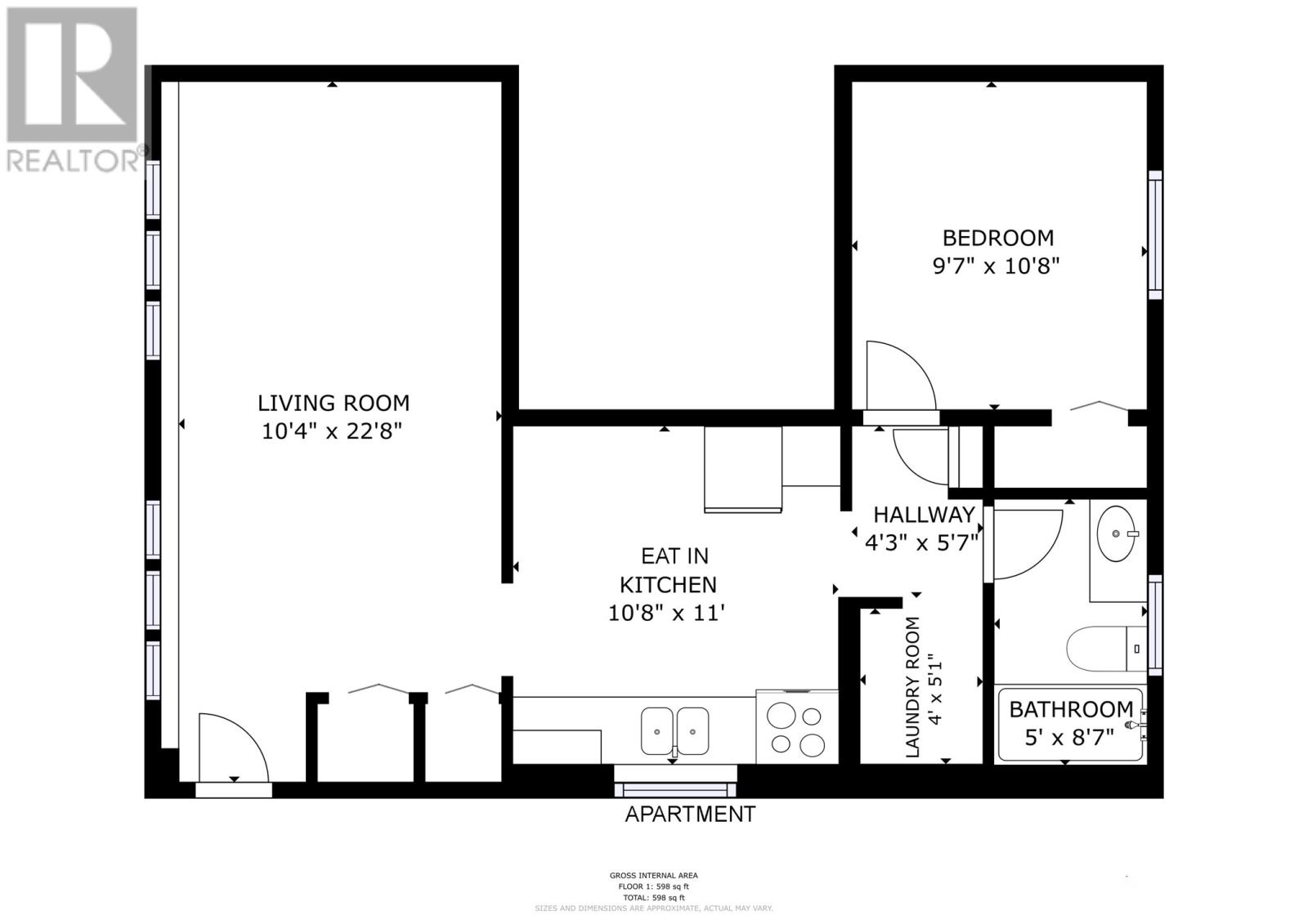
Rooms

Basement
  • Bedroom
  • Size: 9 x 10
  • Eat in kitchen
  • Size: 10 x 11
  • Living room
  • Size: 10 x 22
Lower level
  • Office
  • Size: 9 x 9
  • Recreation room
  • Size: 10 x 16
Main level
  • Bedroom
  • Size: 9 x 12
  • Bedroom
  • Size: 8 x 10
  • Eat in kitchen
  • Size: 10 x 18
  • Living room
  • Size: 11 x 22
  • Primary Bedroom
  • Size: 10 x 13

Details

Updated on 2026-04-30 05:10:30
  • Year Built:1990
  • Appliances:Dishwasher, Refrigerator, Microwave, Stove
  • Zoning Description:Two Apartment House
  • Lot Size:50 x 100
  • Amenities:Recreation, Shopping

Additional details

  • Building Type:Two Apartment House
  • Floor Space:2128 sqft
  • Baths:3
  • Half Baths:1
  • Bedrooms:5
  • Rooms:10
  • Flooring Type:Laminate
  • Construction Style:Split level
  • Foundation Type:Concrete
  • Sewer:Municipal sewage system
  • Cooling Type:Air exchanger
  • Heating Type:Baseboard heaters
  • Heating:Electric
  • Exterior Finish:Vinyl siding

Mortgage Calculator

Monthly
  • Principal & Interest
  • Property Tax
  • Home Insurance
  • PMI
$
$
%
$
$
$

360° Virtual Tour

Listing History

 2022-06-01 $319,000
 2016-01-15 $299,000
 2015-11-28 $299,000
 2015-09-25 $309,000
 2015-08-08 $309,000

Similar Listings

Compare listings

Compare
  • Contact Us