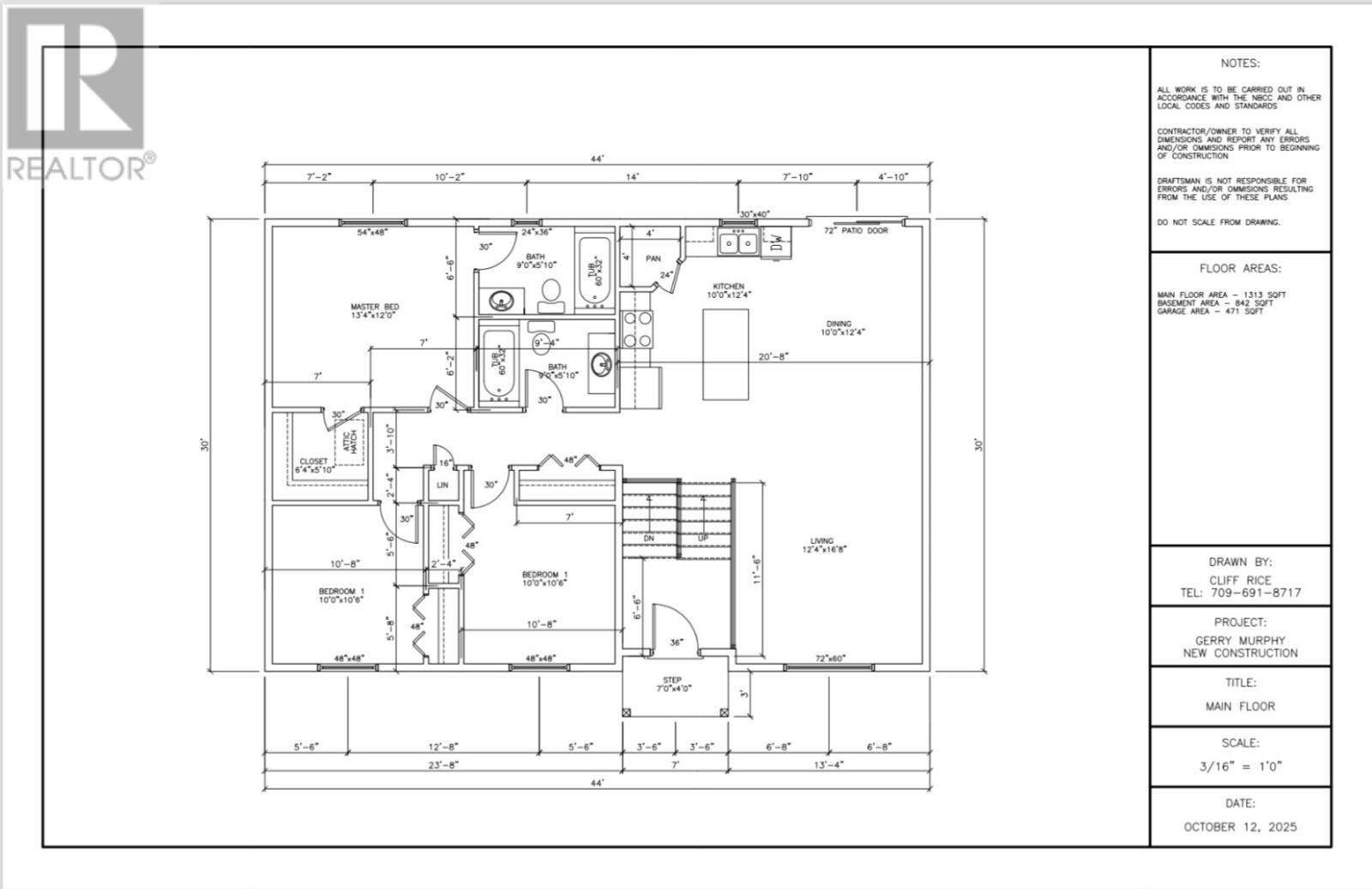
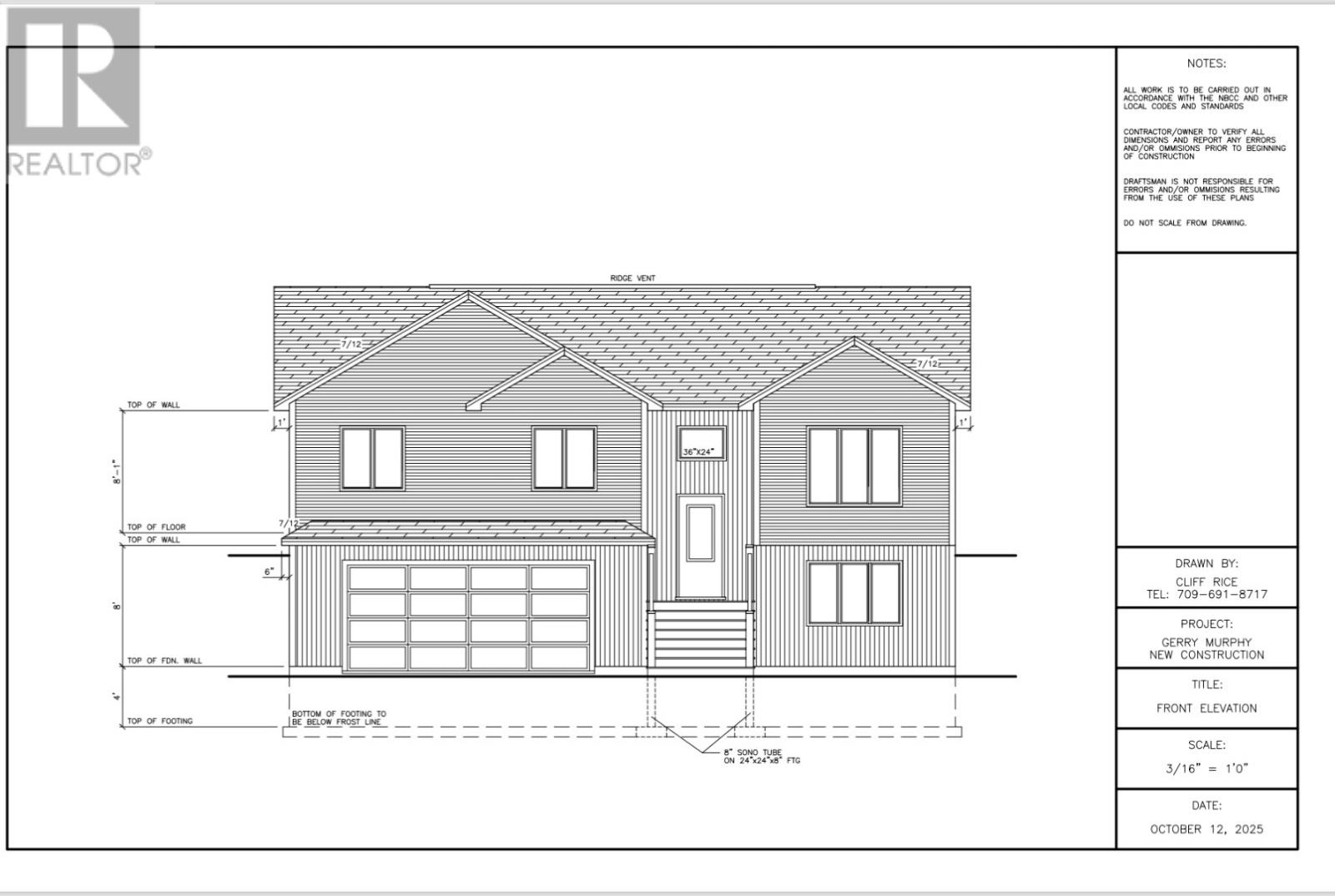
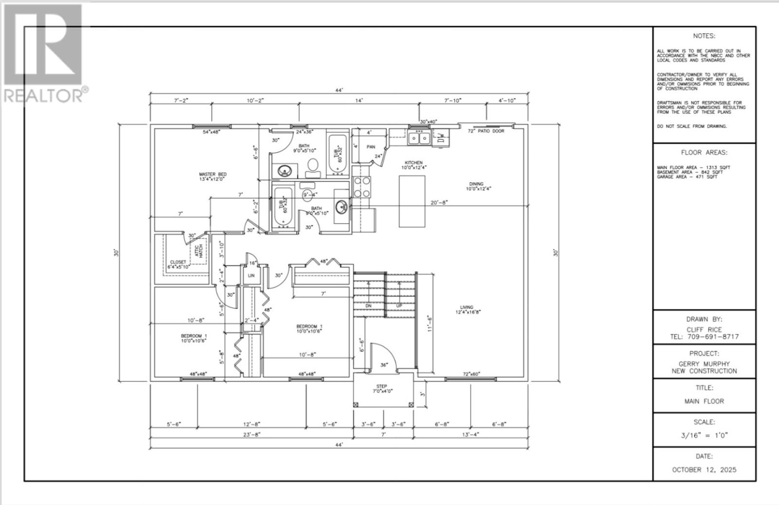
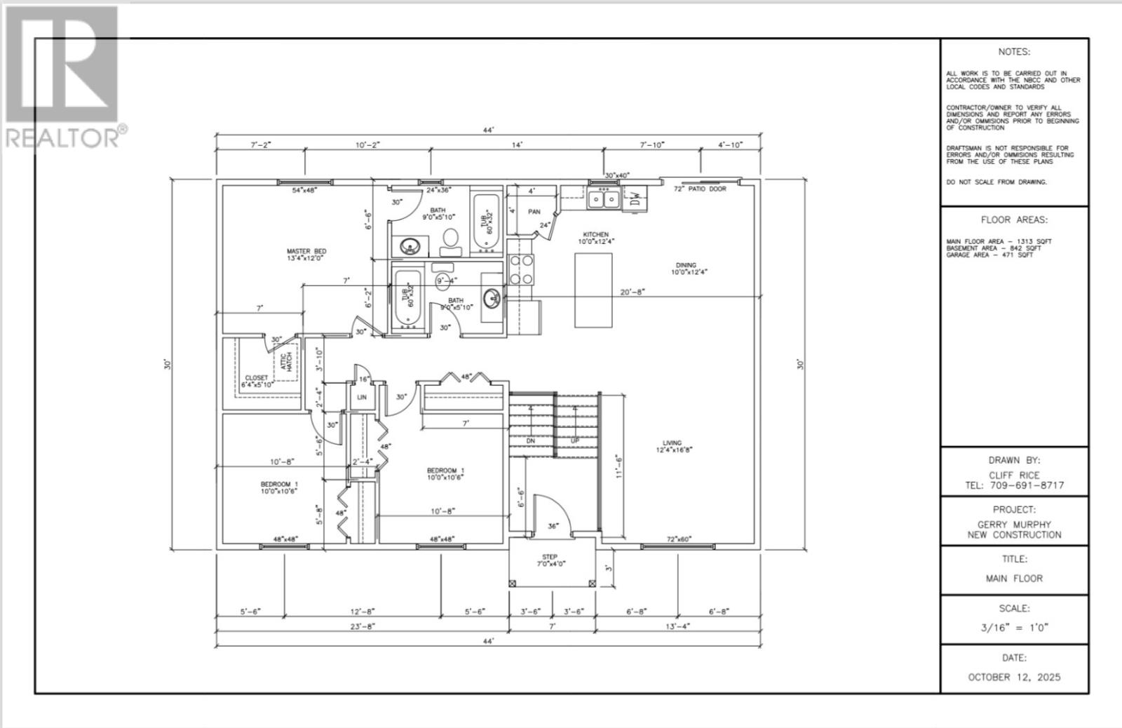
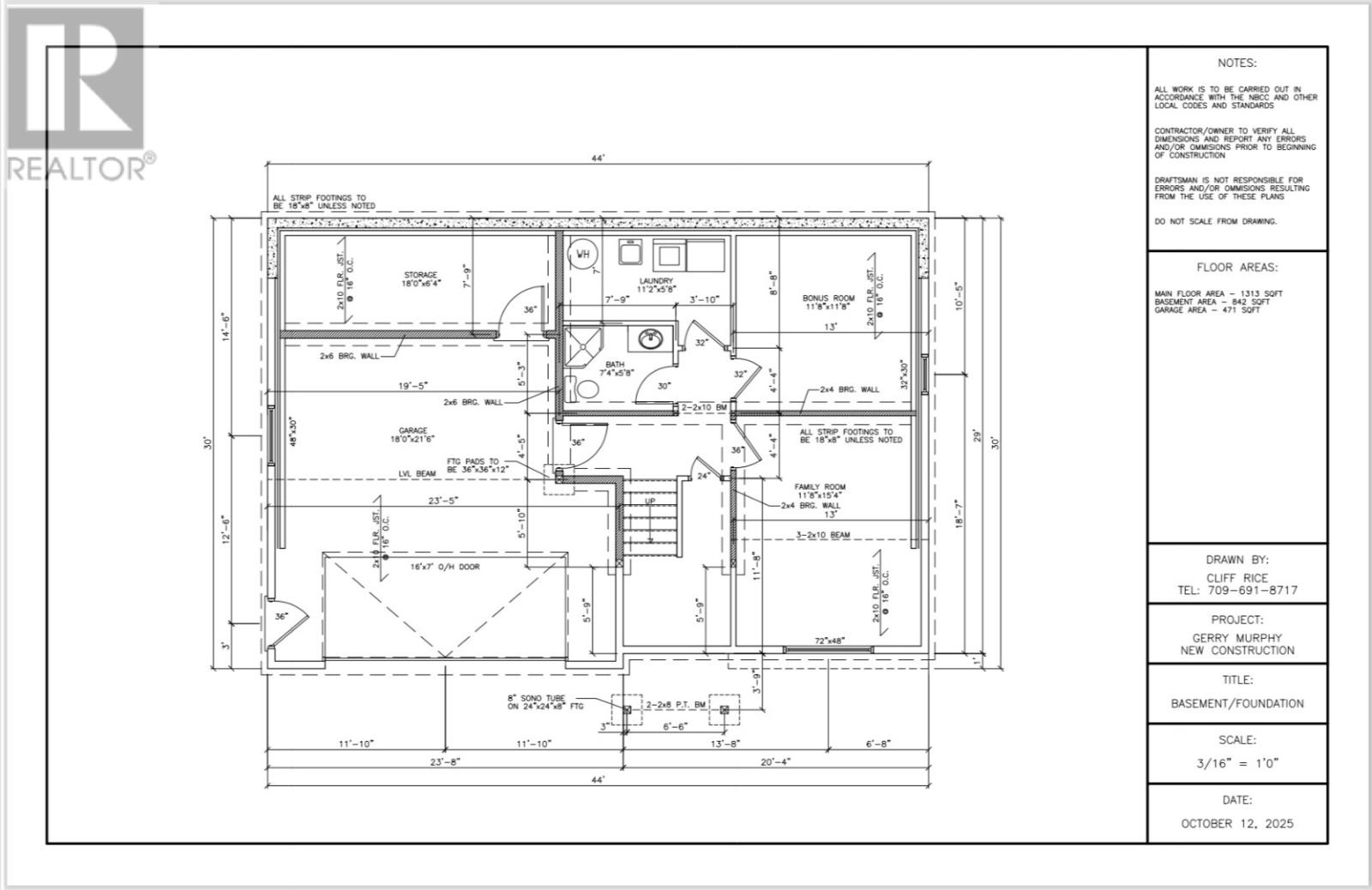
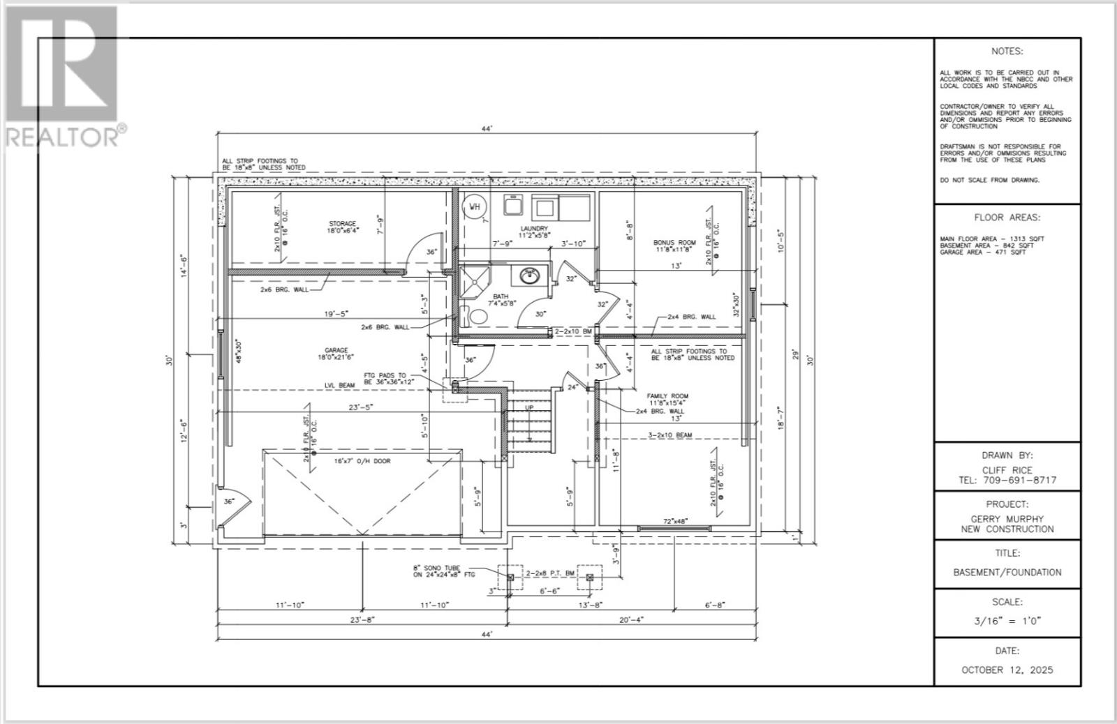
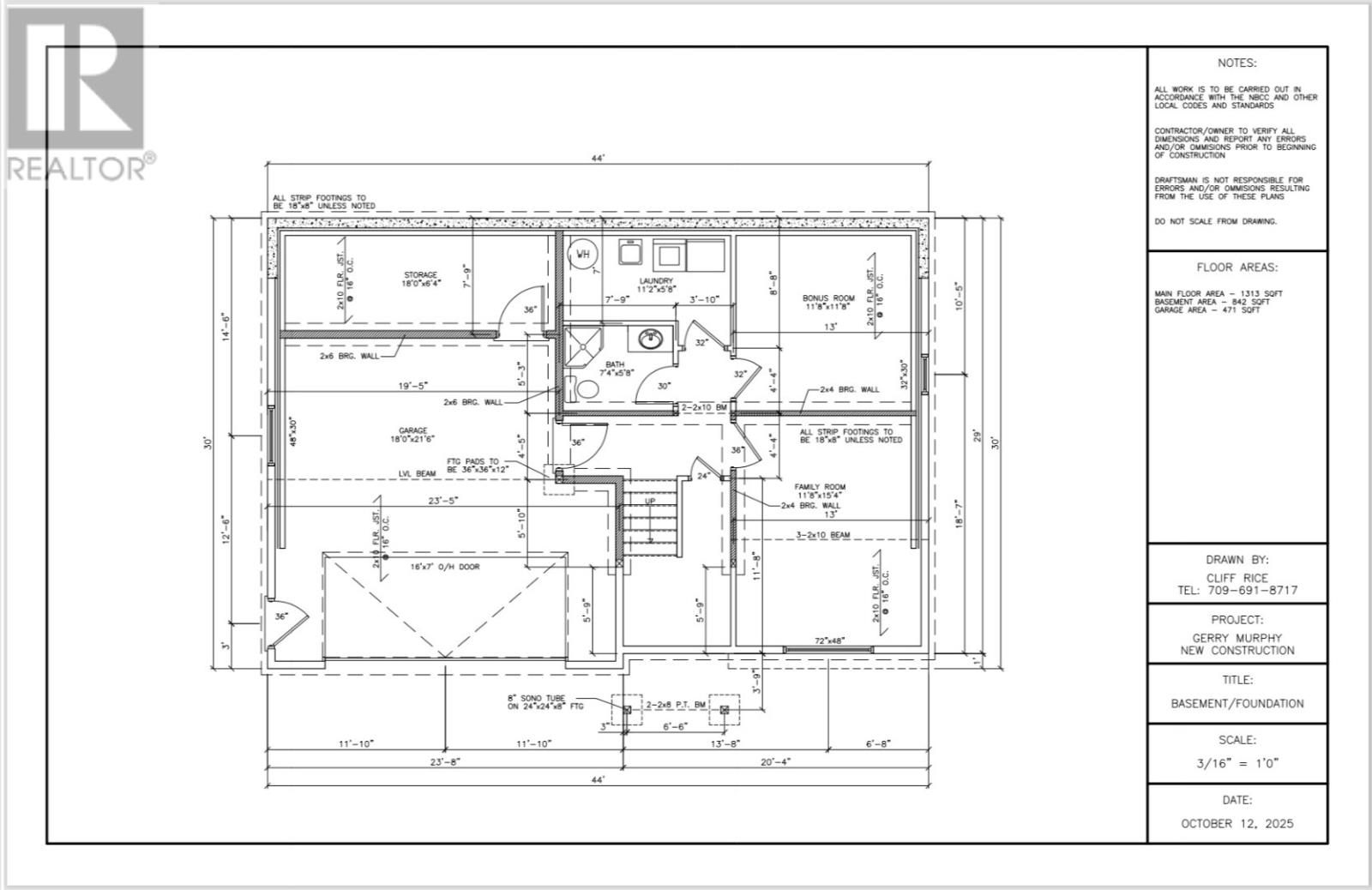
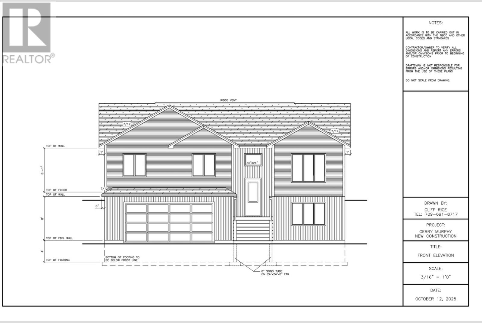
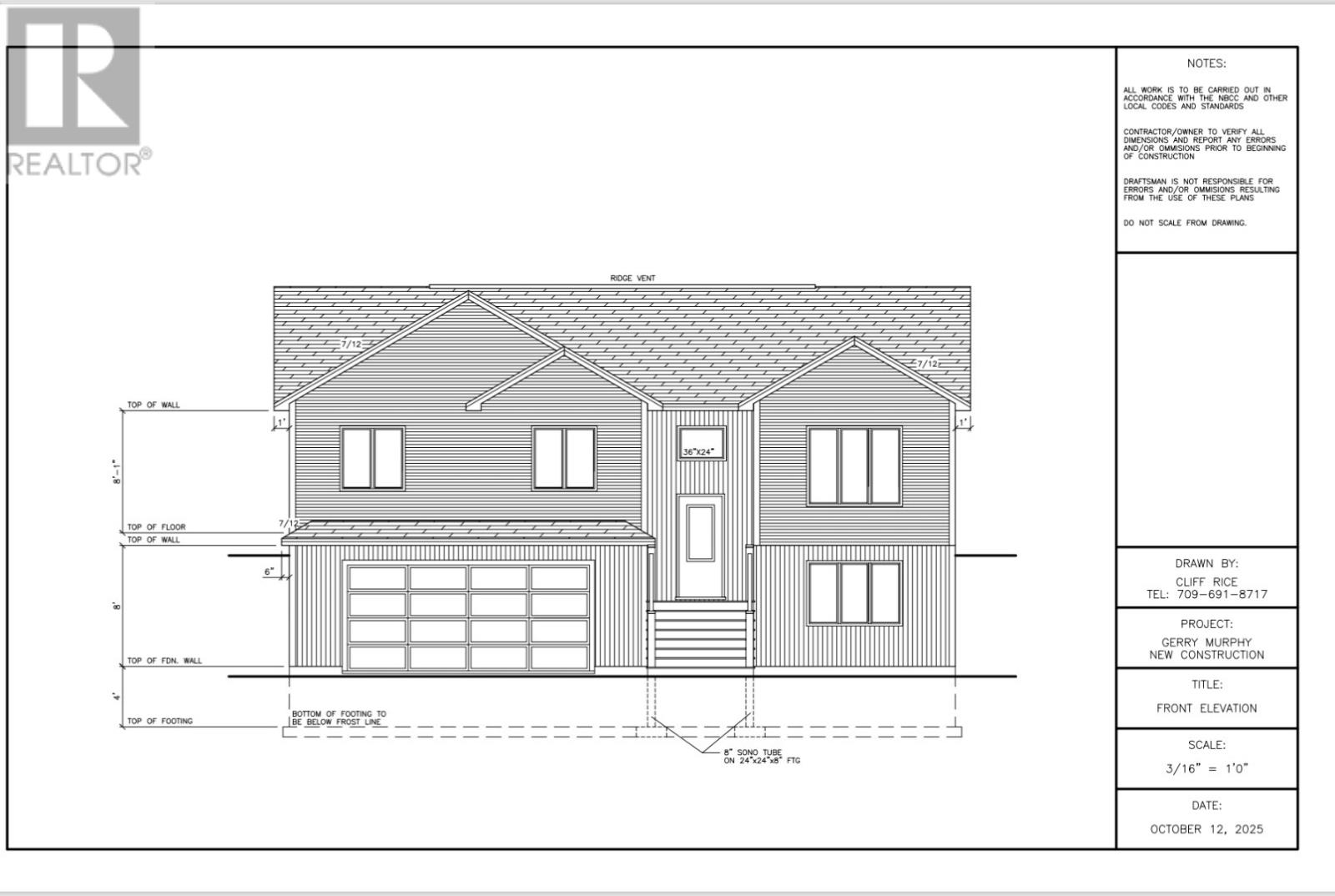
Welcome to 19â21 Irish Town Road in the heart of Bay Bulls. This single-family home is currently under construction and is scheduled to be move-in ready in June 2026. The bonus with getting in early is that the buyer still has the opportunity to choose many of the finishes and really make the home their own. The location is hard to beat. Youâre close to everyday amenities like the grocery store, pharmacy, restaurants, and recreation facilities, plus youâre just minutes from the ocean and several access points to different sections of the scenic East Coast Trail. This home also includes a number of upgrades you donât typically see in new builds, including a concrete septic system, limited lifetime shingles, and a fully finished basement with a third full bathroom, rec room, bonus room, finished laundry room and a utility room in the back of the garage. There are many additional upgrades as well. Outside, the property offers drive-in access to the backyard and plenty of space to add a shed or additional storage. A great opportunity to own a brand-new home in a well-established and growing community. (id:58149)