50 Torbay Road Unit#A

  • $1,300/L
Featured For rent Open on Google Maps
50 Torbay Road Unit#A, St. John`s, NL A1A2G4, CA
Featured For rent Open on Google Maps
50 Torbay Road Unit#A, St. John`s, NL A1A2G4, CA
  • $1,300/L

Overview

MLS® NUMBER: 1292208
  • Other
  • Property Type
  • 3
  • Bedrooms
  • 1
  • Bathrooms
  • 600
  • Sq Ft

Listed by: RE/MAX Infinity Realty Inc.

Description

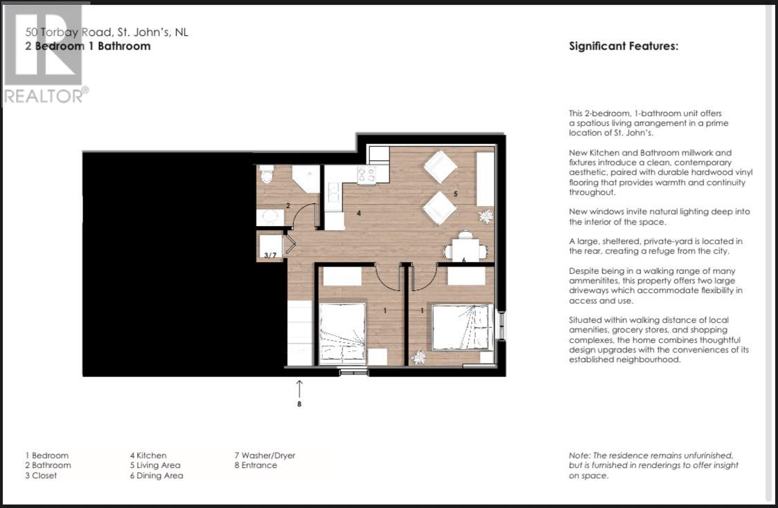
This cozy 2-bedroom apartment has been completely rebuilt from the studs up — everything is brand new! From fresh pavement, siding, and windows outside to all-new insulation, drywall, kitchen, bathroom, flooring, and lighting inside, no detail was overlooked. The stylish kitchen features brand new, never-used appliances, and the space offers a comfortable modern layout perfect for easy living. Available immediately, this home sits in a prime East-End location within walking distance to grocery stores, restaurants, shopping, recreation, and just a short walk to Quidi Vidi Lake and Downtown St. John’s. A rare opportunity to enjoy the benefits of new construction in a mature, convenient neighbourhood close to everything! (id:9704)

Rooms

Basement
  • Bath (# pieces 1-6)
  • Size: 6.7x6
  • Bedroom
  • Size: 10.9x9.5
  • Bedroom
  • Size: 8.5x8.6
  • Laundry room
  • Size: 2.7x2.3
  • Living room
  • Size: 12.1x10.4
  • Not known
  • Size: 10.6x9.2

Details

Updated on 2025-11-08 13:10:18
  • Year Built:2025
  • Appliances:Dishwasher, Refrigerator, Stove, Washer, Dryer
  • Zoning Description:Other
  • Lot Size:~60x100
  • Amenities:Shopping

Additional details

  • Building Type:Other
  • Floor Space:600 sqft
  • Architectural Style:Bungalow
  • Stories:1
  • Baths:1
  • Half Baths:0
  • Bedrooms:3
  • Flooring Type:Laminate, Other
  • Foundation Type:Concrete
  • Sewer:Municipal sewage system
  • Cooling Type:Air exchanger
  • Heating Type:Baseboard heaters
  • Heating:Electric
  • Exterior Finish:Vinyl siding

Compare listings

Compare
  • Contact Us