50 Torbay Road

  • $2,600/L
Featured For rent Open on Google Maps
50 Torbay Road, St. John`s, NL , CA
Featured For rent Open on Google Maps
50 Torbay Road, St. John`s, NL , CA
  • $2,600/L

Overview

MLS® NUMBER: 1292189
  • Multi-family
  • Property Type
  • 3
  • Bedrooms
  • 1
  • Bathrooms
  • 900
  • Sq Ft

Listed by: RE/MAX Infinity Realty Inc.

Description

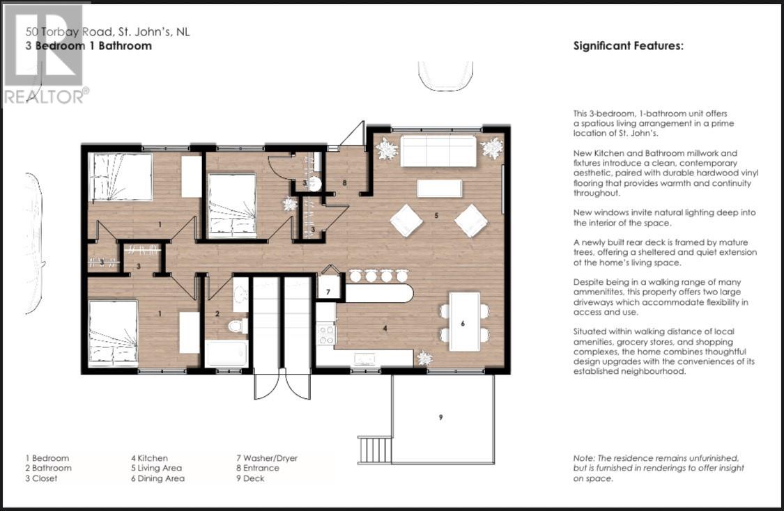
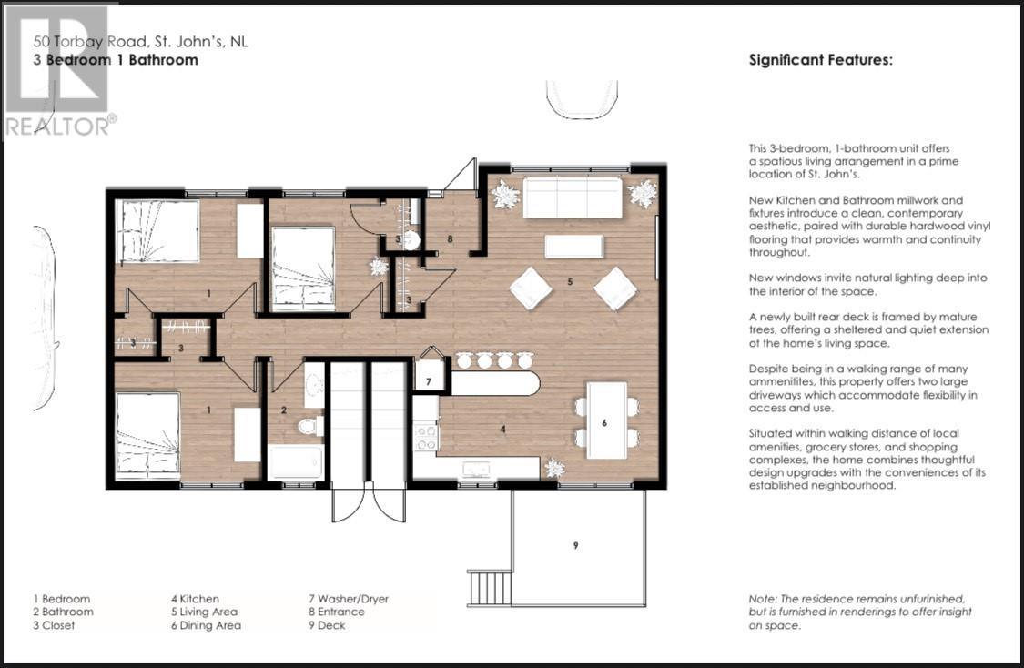
Completely rebuilt from the studs up, this 3-bedroom apartment feels like a brand new home in the heart of St. John’s. Every inch has been redone — from new pavement, windows, and siding outside, to all-new insulation, drywall, kitchen, bathroom, flooring, lighting, and more inside. The modern kitchen comes fully equipped with brand new, never-used appliances, while the spacious fenced backyard and new deck offer a great space to relax or entertain. Move-in ready and available immediately, this home is perfectly located within walking distance to grocery stores, restaurants, shopping, recreation, and just a short stroll to Quidi Vidi Lake and Downtown St. John’s. A rare chance to enjoy the comfort and quality of new construction in an established, convenient area close to everything! Vendor is willing to consider furnishing the unit for an agreed upon lease amount! (id:58149)

Rooms

Main level
  • Bath (# pieces 1-6)
  • Size: 9.10x4.10
  • Bedroom
  • Size: 10.1x9.5
  • Bedroom
  • Size: 12.4x9.5
  • Bedroom
  • Size: 12.3x9.10
  • Dining room
  • Size: 10.3x8.3
  • Kitchen
  • Size: 10.3x8.3
  • Laundry room
  • Size: 2.6x2.6
  • Living room
  • Size: 14.3x15
  • Porch
  • Size: 10x4.8

Details

Updated on 2026-02-07 16:12:39
  • Year Built:2025
  • Appliances:Dishwasher, Refrigerator, Stove, Washer, Dryer
  • Zoning Description:Other
  • Lot Size:60x100
  • Amenities:Shopping

Additional details

  • Building Type:Other
  • Floor Space:900 sqft
  • Architectural Style:Bungalow
  • Stories:1
  • Baths:1
  • Half Baths:0
  • Bedrooms:3
  • Flooring Type:Laminate, Other
  • Foundation Type:Concrete
  • Sewer:Municipal sewage system
  • Cooling Type:Air exchanger
  • Heating Type:Baseboard heaters
  • Heating:Electric
  • Exterior Finish:Vinyl siding

School Zone

 Vanier Elementary  L1 - L3
 Macdonald Drive Junior High  6 - 9
 Gonzaga High  K - 5

Compare listings

Compare
  • Contact Us