1 Gregg Avenue

  • $419,000
Featured For sale Open on Google Maps
1 Gregg Avenue, Paradise, NL A1L1L3, CA
Featured For sale Open on Google Maps
1 Gregg Avenue, Paradise, NL A1L1L3, CA
  • $419,000

Overview

MLS® NUMBER: 1290948
  • Single Family
  • Property Type
  • 3
  • Bedrooms
  • 2
  • Bathrooms
  • 1730
  • Sq Ft
  • 1974
  • Year Built

Listed by: 3% Realty East Coast

Description

Welcome to this one-owner, never-before-listed home in Paradise! Nestled on a large, oversized corner lot on a quiet street, this well-cared-for property has enjoyed many updates over the years and offers some of the most stunning sunset views from your beautiful front deck and living room windows. Inside, you’re greeted by a porch leading into a spacious open concept living and dining area complete with propane fireplace as well as a mini split for added comfort and home efficiency, off the dining area is your bright kitchen with space for a table and direct access to the beautifully landscaped backyard — perfect for entertaining or relaxing. Upstairs features three comfortable bedrooms and a full bath, while the lower level offers incredible potential with a spacious rec room/office area, second full bath, storage room, and convenient access to the attached garage. With its thoughtful layout, landscaped grounds, and ample parking space, this charming family home is ready to welcome its next chapter. Some extra features include a loft style space with drop down ladder for additional storage off the main floor, mini split addition in 2019, propane fireplace in 2014, as well as a shed in the rear of the property and some upgrades/updates over the years include a new front deck, addition of a dishwasher, addition of an air exchanger (2004), new flooring, renovated bathroom on the 2nd floor as well as the basement and so much more! Truly a cared for home. (id:9704)

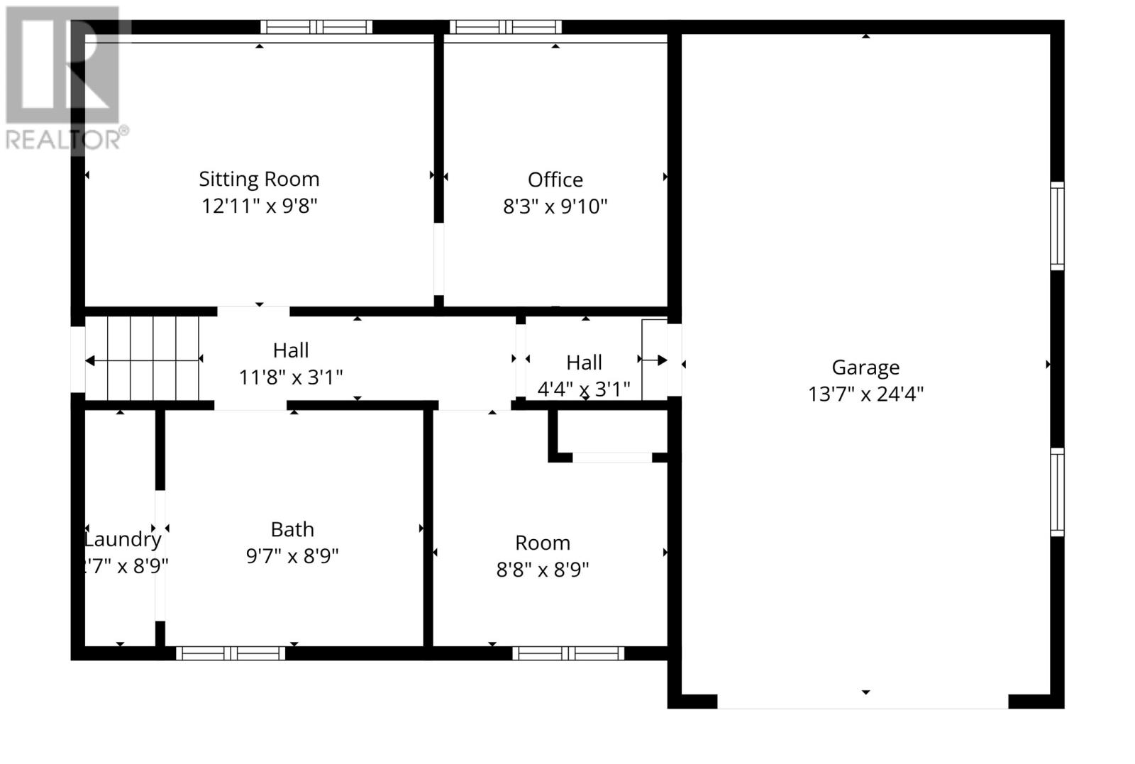
Rooms

Basement
  • Bath (# pieces 1-6)
  • Size: 3 pcs
  • Office
  • Size: 8.3 x 9.10
  • Recreation room
  • Size: 12.11 x 9.8
  • Storage
  • Size: 8.8 x 8.9
Main level
  • Dining nook
  • Size: 7.11 x 8.4
  • Dining room
  • Size: 7.11 x 11.10
  • Foyer
  • Size: 4.0 x 5.10
  • Kitchen
  • Size: 7.3 x 11.6
  • Living room
  • Size: 17.3 x 12.7
Second level
  • Bath (# pieces 1-6)
  • Size: 4 pcs
  • Bedroom
  • Size: 9.8 x 10.1
  • Bedroom
  • Size: 9.1 x 10.0
  • Primary Bedroom
  • Size: 13.4 x 9.4

Details

Updated on 2025-10-24 16:10:09
  • Year Built:1974
  • Zoning Description:House
  • Lot Size:155 x 124 x 149 x 100

Additional details

  • Building Type:House
  • Floor Space:1730 sqft
  • Stories:1
  • Baths:2
  • Half Baths:0
  • Bedrooms:3
  • Rooms:13
  • Flooring Type:Ceramic Tile, Hardwood, Laminate
  • Construction Style:Sidesplit
  • Foundation Type:Poured Concrete
  • Sewer:Municipal sewage system
  • Heating Type:Mini-Split
  • Heating:Electric
  • Exterior Finish:Brick, Vinyl siding
  • Construction Style Attachment:Detached

Mortgage Calculator

Monthly
  • Principal & Interest
  • Property Tax
  • Home Insurance
  • PMI
$
$
%
$
$
$

Similar Listings

Compare listings

Compare
  • Contact Us