27 Colorado Street

  • $539,900
Featured For sale Open on Google Maps
27 Colorado Street, Paradise, NL A1L4M1, CA
Featured For sale Open on Google Maps
27 Colorado Street, Paradise, NL A1L4M1, CA
  • $539,900

Overview

MLS® NUMBER: 1290574
  • Single Family
  • Property Type
  • 3
  • Bedrooms
  • 2
  • Bathrooms
  • 2344
  • Sq Ft
  • 2025
  • Year Built

Listed by: Royal LePage Vision Realty

Description

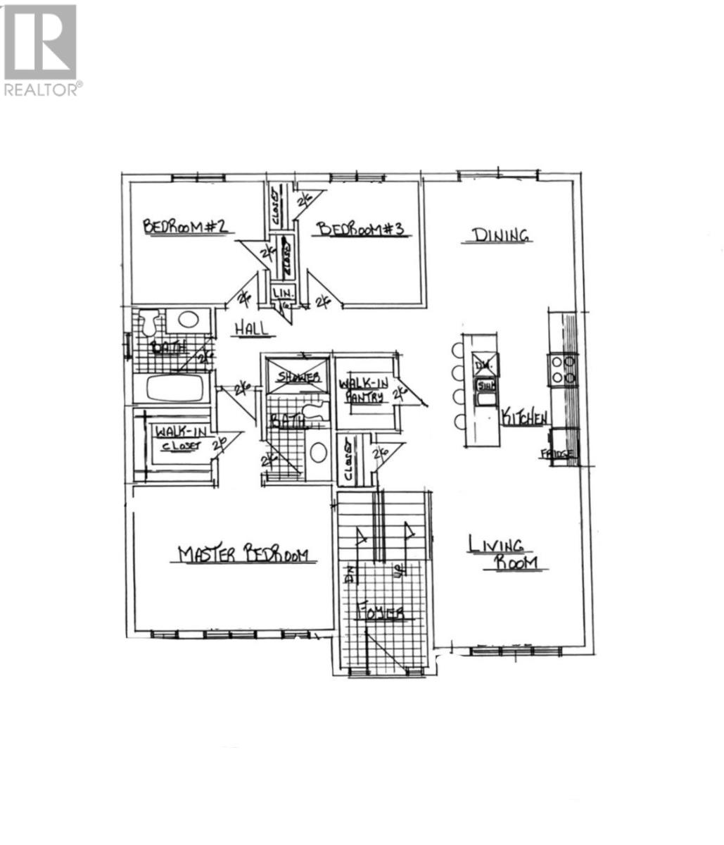
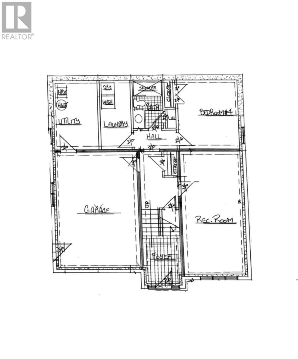
This brand new under construction split-entry home offers a modern design with quality finishes throughout. The main floor features an open-concept layout with a bright living area, dining space, and a kitchen complete with custom cabinetry, a 12 foot island and a walk in pantry, plus generous allowances to personalize your finishes. There are three bedrooms on the main level, including a spacious primary bedroom with a walk-in closet and ensuite featuring a custom tiled shower. A full main bath completes the layout. The hardwood staircase leads to the partially developed basement, which includes a finished rec room and access to the attached in-house garage for added convenience. Located in a desirable community of Paradise, this home is designed with comfort and function in mind, making it an excellent choice for today’s market. (id:9704)

Rooms

Basement
  • Not known
  • Size: 16x23
  • Recreation room
  • Size: 12x24
Lower level
  • Foyer
  • Size: 8x13
Main level
  • Bath (# pieces 1-6)
  • Size: 8x7
  • Bedroom
  • Size: 10.5x11
  • Bedroom
  • Size: 10x11
  • Dining room
  • Size: 11x12
  • Ensuite
  • Size: 5x10
  • Kitchen
  • Size: 12x12
  • Living room
  • Size: 12x15
  • Not known
  • Size: 3x6
  • Primary Bedroom
  • Size: 12x16

Details

Updated on 2025-09-23 16:10:06
  • Year Built:2025
  • Zoning Description:House
  • Lot Size:59x155x59x154
  • Amenities:Recreation, Shopping

Additional details

  • Building Type:House
  • Floor Space:2344 sqft
  • Stories:1
  • Baths:2
  • Half Baths:0
  • Bedrooms:3
  • Rooms:12
  • Flooring Type:Laminate
  • Construction Style:Split level
  • Foundation Type:Concrete
  • Sewer:Municipal sewage system
  • Cooling Type:Air exchanger
  • Heating Type:Baseboard heaters
  • Heating:Electric
  • Exterior Finish:Vinyl siding
  • Construction Style Attachment:Detached

Mortgage Calculator

Monthly
  • Principal & Interest
  • Property Tax
  • Home Insurance
  • PMI
$
$
%
$
$
$

Similar Listings

Compare listings

Compare
  • Contact Us