151 Crosbie Road Unit#101

  • $18/L sqft
Featured For lease Open on Google Maps
151 Crosbie Road Unit#101, St. John`s, NL A1B4B4, CA
Featured For lease Open on Google Maps
151 Crosbie Road Unit#101, St. John`s, NL A1B4B4, CA
  • $18/L sqft

Overview

MLS® NUMBER: 1287827
  • Office
  • Property Type
  • 5325
  • Sq Ft

Listed by: Royal LePage Property Consultants Limited

Description

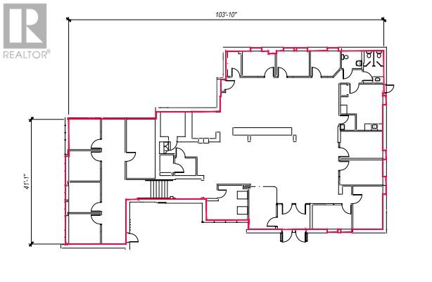
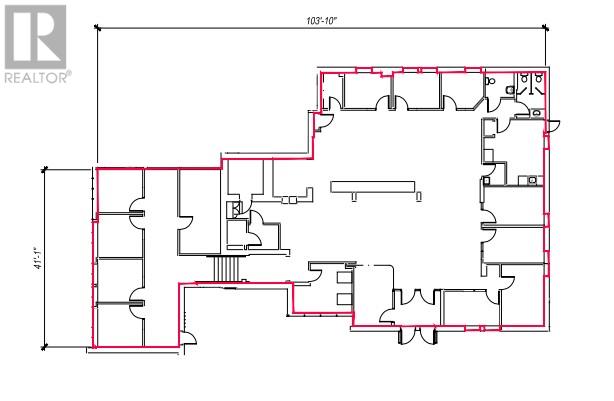
151 Crosbie Rd is a centrally located, high exposure building with tons of recent upgrades (all new HVAC units, all new windows and doors, new exterior facade, and new roof)! On the corner of Freshwater & Crosbie Rd, this building offers quick and convenient access to commercial districts and transportation links including downtown, Kenmount Rd, Columbus Dr, Kelsey Dr, and the Outer Ring Rd/Trans Canada Highway. This high exposure retail/storefront unit will be available for lease as of Oct 1, 2025. Zoned Commercial Highway, the property allows for a number of commercial uses! Suite 101 has a current layout that includes exterior offices, large windows, in-suite washroom facilities, and kitchen. Listed at $18/sqft Net + Operating Costs! Contact listing agent for additional details. (id:58149)

Details

Updated on 2026-02-07 16:13:51
  • Zoning Description:Special Purpose

Additional details

  • Building Type:Special Purpose
  • Floor Space:5325 sqft
  • Cooling Type:Air exchanger
  • Heating Type:Heat Pump
  • Heating:Electric

School Zone

 Prince of Wales Collegiate  L1 - L3
 Leary’s Brook Junior High  6 - 9
 St. Andrew’s Elementary  K - 5

Compare listings

Compare
  • Contact Us