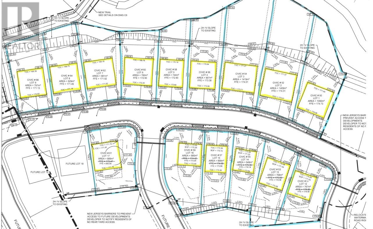
66 Yellow Wood Drive

  • $220,000
Featured For sale Open on Google Maps
66 Yellow Wood Drive, Paradise, NL A1L0X1, CA
Featured For sale Open on Google Maps
66 Yellow Wood Drive, Paradise, NL A1L0X1, CA
  • $220,000

Overview

MLS® NUMBER: 1285725
  • Vacant Land
  • Property Type

Listed by: Karwood Sales Inc.

Description

Lot for sale at 66 YellowWood drive Paradise backing on walking trail and has 63 feet frontage , giving you a walk out basement plus rear garden access.Located close to schools,daycare,walking trails,minuets to major shopping centres, hospital and universities. Plus HST (id:9704)

Details

Updated on 2025-06-08 16:10:32
  • Lot Size:797 sq meters
  • Amenities:Recreation, Shopping

Additional details

  • Floor Space:Array
  • Sewer:Municipal sewage system

Mortgage Calculator

Monthly
  • Principal & Interest
  • Property Tax
  • Home Insurance
  • PMI
$
$
%
$
$
$

Compare listings

Compare
  • Contact Us