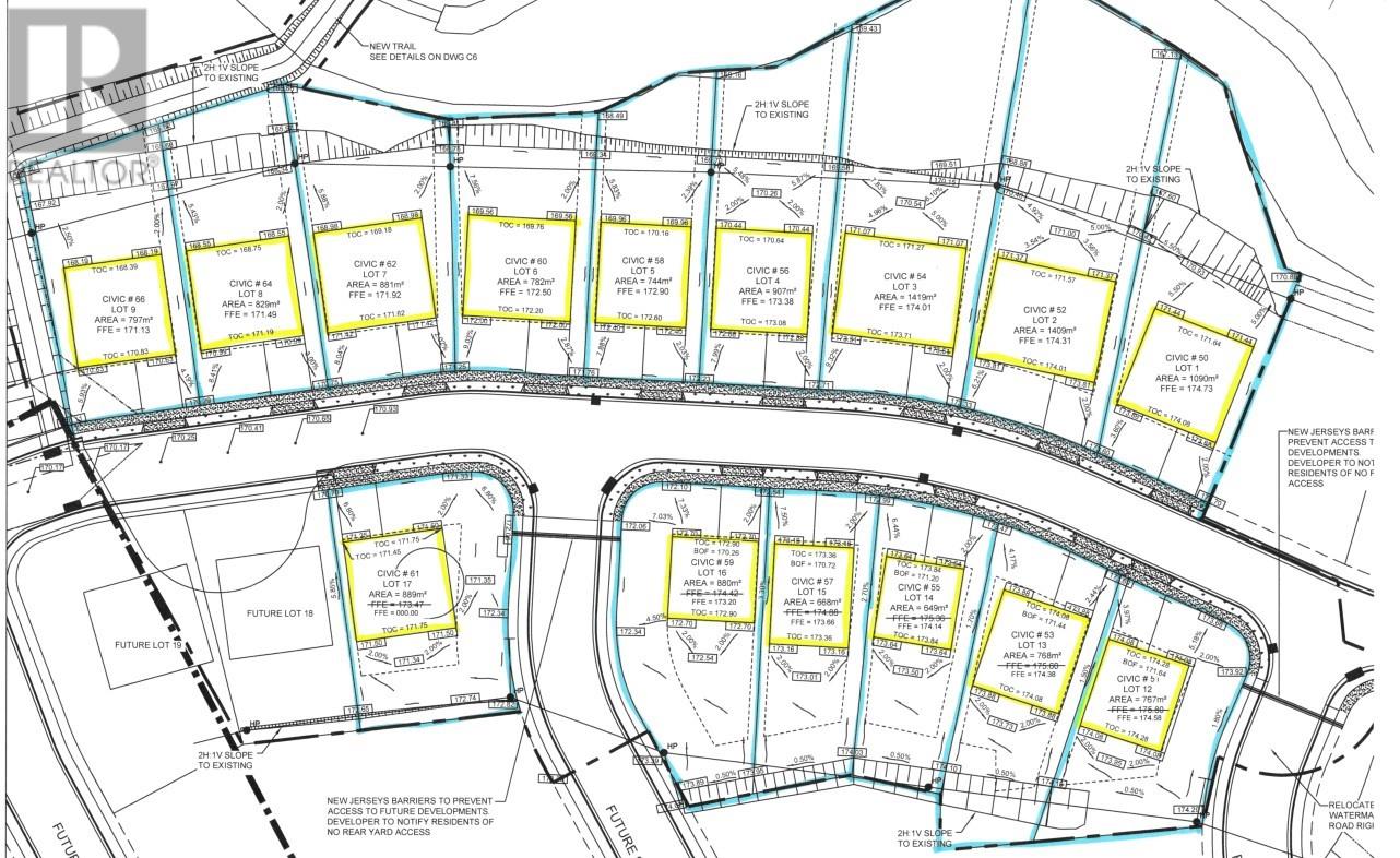
58 Yellow Wood Drive

  • $192,500
Featured For sale Open on Google Maps
58 Yellow Wood Drive, Paradise, NL A1L0X9, CA
Featured For sale Open on Google Maps
58 Yellow Wood Drive, Paradise, NL A1L0X9, CA
  • $192,500

Overview

MLS® NUMBER: 1285342
  • Vacant Land
  • Property Type

Listed by: Karwood Sales Inc.

Description

56.05 frontage on lot civic number 58 Yellow Wood Dr Excuctive over size lot backing on beautiful Neils pond, are ready to purchase. Located close to schools, daycare, supermarkets and major shopping centers. Fully serviced lot, plus location, location. The location you build will make the world of differance, not building on any lot because of price. This is your chance to build the home of your dreams. Plus HST (id:9704)

Details

Updated on 2025-06-08 16:10:21
  • Lot Size:907 sq m
  • Amenities:Recreation, Shopping

Additional details

  • Floor Space:Array
  • Sewer:Municipal sewage system

Mortgage Calculator

Monthly
  • Principal & Interest
  • Property Tax
  • Home Insurance
  • PMI
$
$
%
$
$
$

Compare listings

Compare
  • Contact Us