52 Yellow Wood Drive

  • $250,000
Featured For sale Open on Google Maps
52 Yellow Wood Drive, Paradise, NL A1L0X8, CA
Featured For sale Open on Google Maps
52 Yellow Wood Drive, Paradise, NL A1L0X8, CA
  • $250,000

Overview

MLS® NUMBER: 1285359
  • Vacant Land
  • Property Type

Listed by: Karwood Sales Inc.

Description

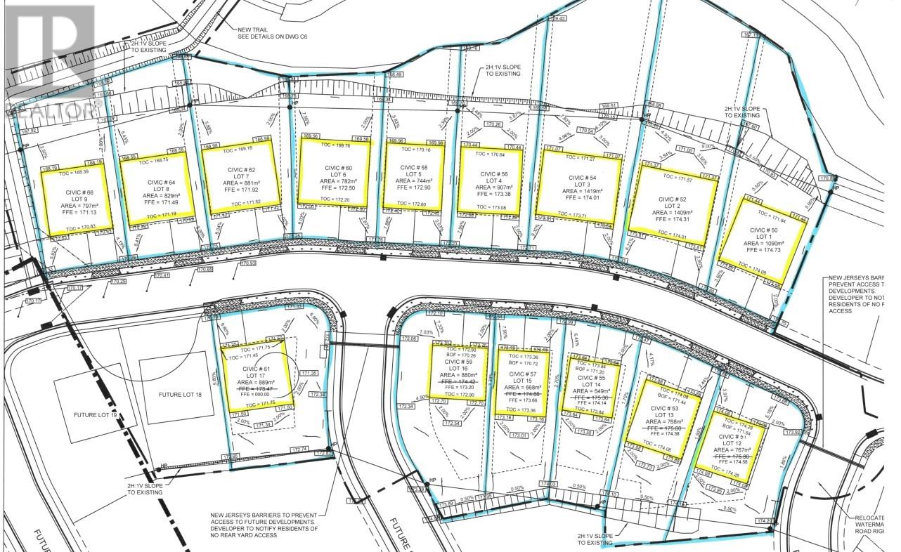
Executive size lot with 70.61 feet frontage located on 52 Yellow Wood Dr in Paradise. Backing on Neils Pond, with walk out basement, rear garden access and backing on walking trail. Located, near schools, shopping centres, daycare, supermarkets, location, location.This what makes the difference when building a new home.Do not miss out on this opportunity. You can buy lot only and build your dream home. Plus HST (id:9704)

Details

Updated on 2025-06-08 16:10:21
  • Lot Size:63 x 135 x 196
  • Amenities:Shopping

Additional details

  • Floor Space:Array
  • Sewer:Municipal sewage system

Mortgage Calculator

Monthly
  • Principal & Interest
  • Property Tax
  • Home Insurance
  • PMI
$
$
%
$
$
$

Compare listings

Compare
  • Contact Us